The Challenge
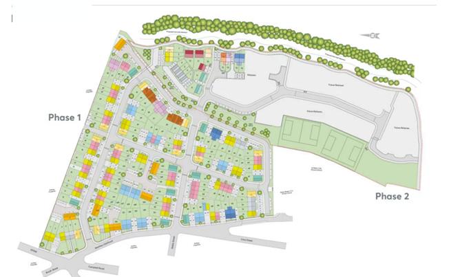
- We were appointed by St Modwen Homes to secure Reserved Matters planning permission for Phase 2 of a hybrid planning permission for 200 residential dwellings on the site of the former Victoria Football Ground, which had lain vacant for the past 20 years.
- The hybrid planning permission provided for the relocation of the River Trent out of an 8m deep concrete culvert running through the site into a new naturalized corridor, the detail of which was the subject of a separate application being determined concurrently by the LPA.
- Part of the Phase 2 site had been excluded from the original hybrid application, so a separate Full application was needed to include this land within the scheme.
Our Solution
- We prepared both Full and Reserved Matters applications for Phase 2 of the development, demonstrating how the proposals would integrate successfully with the earlier Phase 1 development and the submitted proposals for the new river corridor consistent with the original hybrid planning permission.
The Results
- Planning permission was secured, enabling Phase 2 of the development to be delivered, providing 70 dwellings and new outdoor sports pitches for the adjacent primary school.

Get in touch
Stephen Hemming
Senior Director – National Head of Planning Consultancy
Email me direct
To:
REGISTER FOR UPDATES
Get the latest insight, event invites and commercial properties by email